Skip to main content

IMP-46825W,

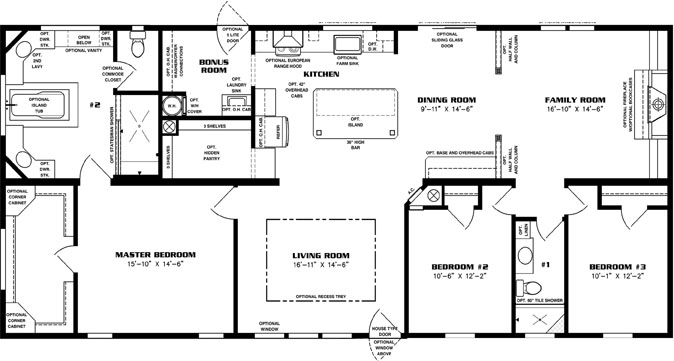
 IMP-46825W

2085

Sq. ft.

3

Bedrooms

2

Bathrooms

32' X 68'

Exterior Dimensions

Floorplan Details

Square Footage

2085

Bedrooms

3

Living Rooms

2

Bathrooms

2

Laundry Rooms

1

Exterior Dimensions

32' X 68'